Quarto piano
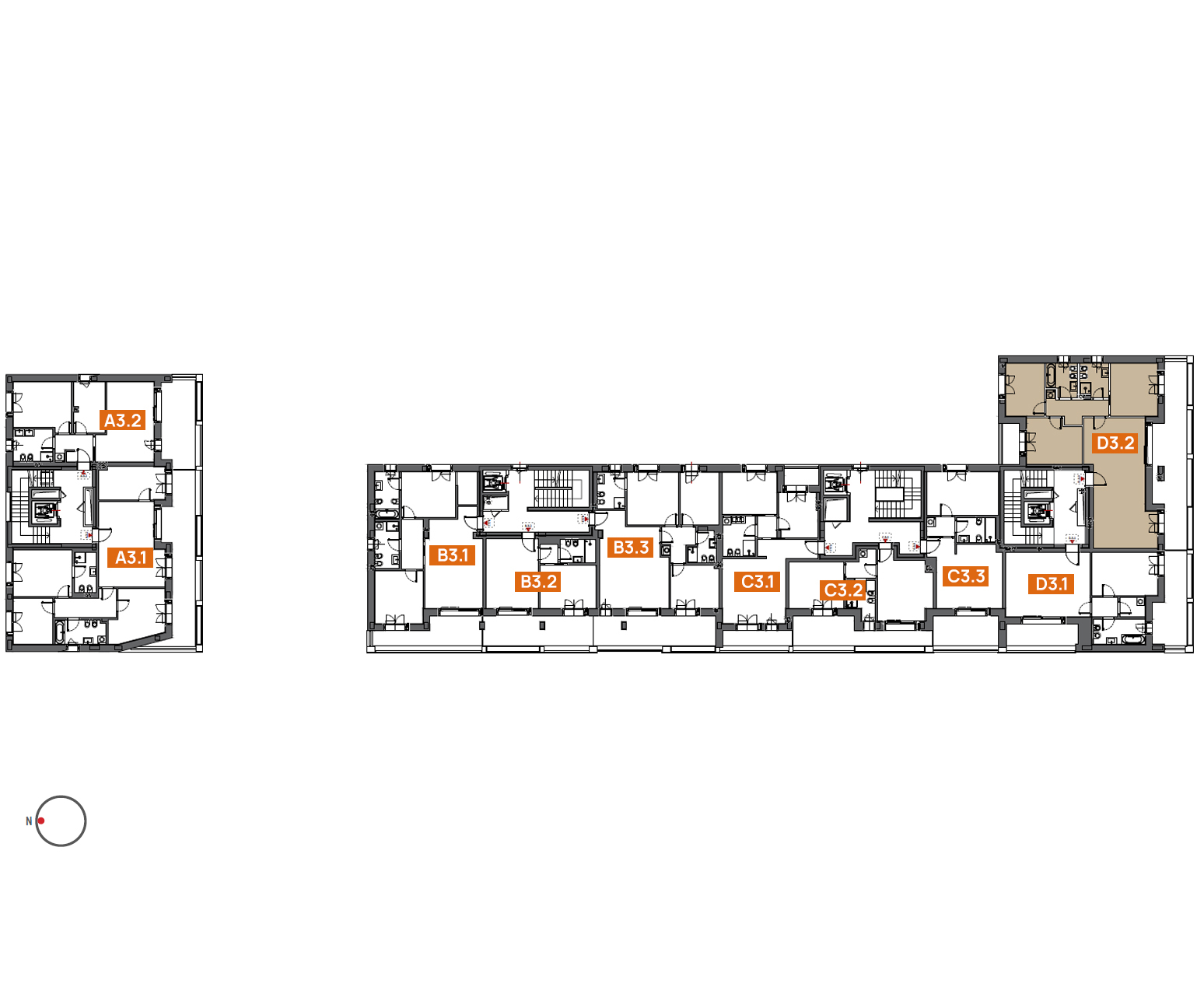
Terzo piano
Secondo piano
Primo piano
Piano terra
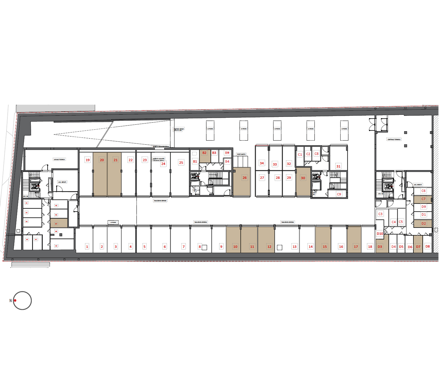
Piano interrato
Fullscreen Overlay
Scopri le planimetrie